︎
Projekty
Studio
Mark
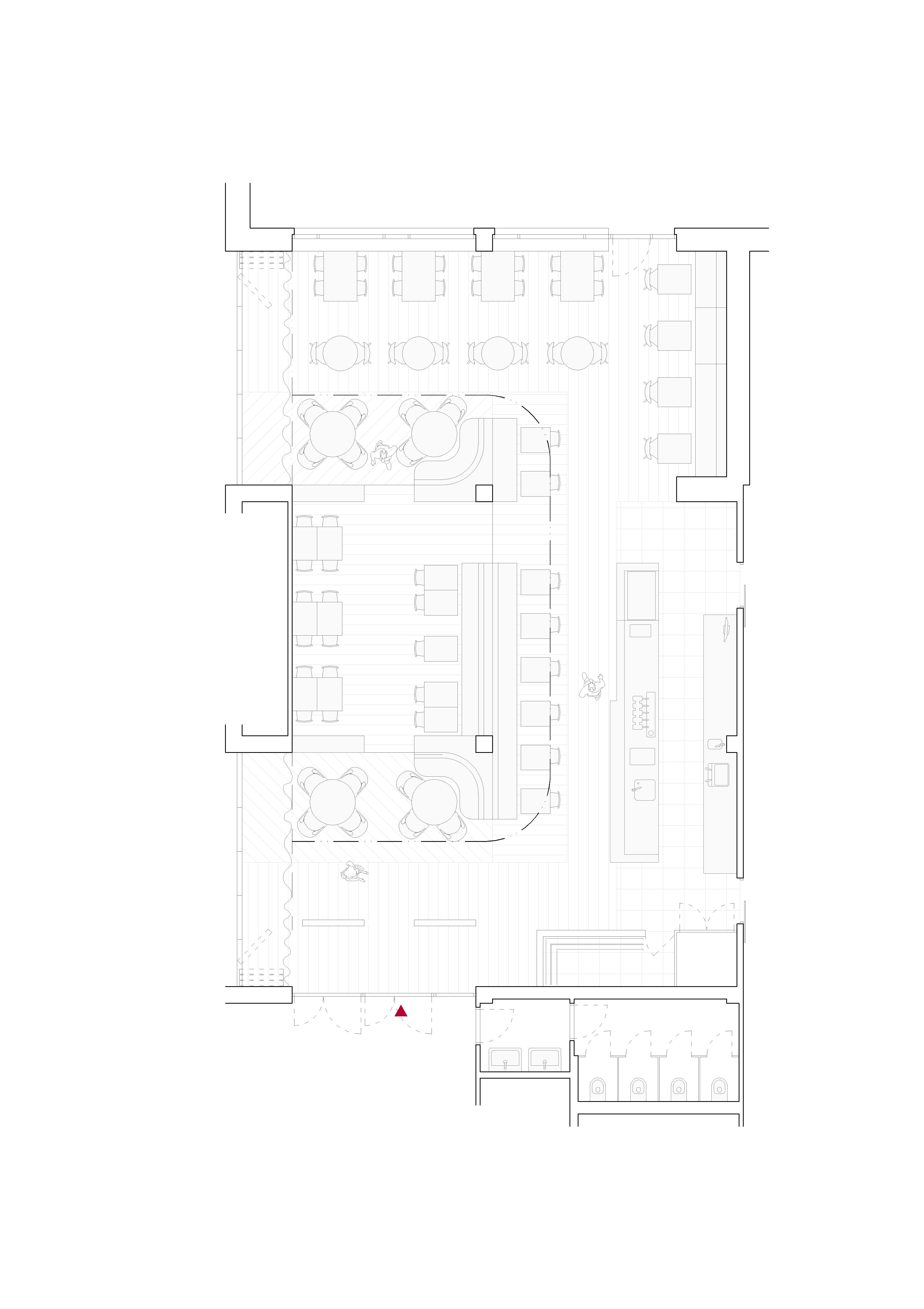
Interiér restaurace
Třebíč, 2019
Architekt:
Václav Páník, Adam Horn
made by PH © 2018–2025
Mark